Feasibility Study, Design, Procurement and Resident Supervision of Water Supply, Sewerage Network and Treatment Plant for seven villages in the territory of Wadi Bani Habib at Jabal Akhdar
Al Manakhar Village
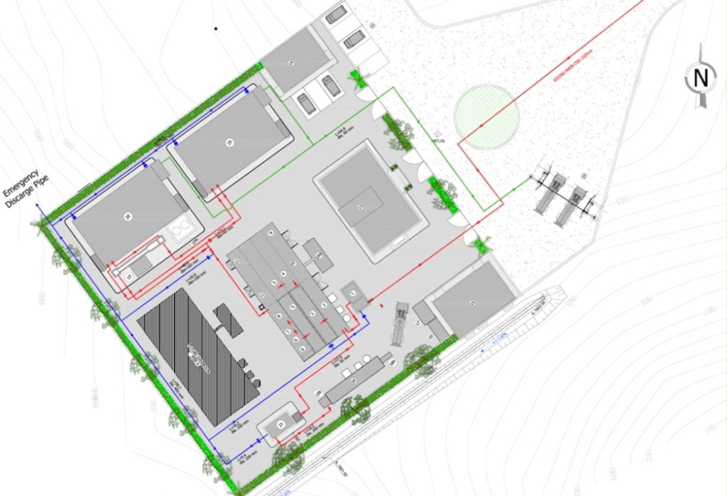
Sewerage Treatment Plant
Wadi Bani Habib Layout Plan of Sewerage Network System
Services provided by Consultant
- Preliminary Site Survey of seven villages to assess the existing conditions and plan for improvement of infrastructure and prepare a situation analysis
- Topographical and Geotechnical Investigations
- Develop Resettlement Action Plan (RAP) framework for protecting the human rights.
- EIA Studies
- RCC Conduits, Pumps and associated Electrical and Mechanical Works
- Detailed Structure and Hydraulic Design of Water supply and Sewerage System
- Preparation of Bill of Quantities (BOQs) and preparation of Capital Expenditures (CAPEX) and O&M expenditures (OPEX) analysis
- Prepare PC-1 & Tender document including Contract document
- Detailed Resident supervision of the Constructions Works and Contract Administration
- Developed an inhouse MIS system for monitoring of the project progress